This website is a guide and is not intended to replace professional advice. Please see our disclaimer for more information!
Design Catalogue
02 Interwar Detached
Interwar Detached were originally built in the 1900’s to 1930’s
The Interwar Detached can be found in many central ‘Streetcar Suburb’ neighbourhoods such as Cabbagetown, Riverdale, Roncesvalles and Little Portugal.
Traditionally they were built with a full-width front porch, many of which have since been internalized as additional interior space. The roof at the front of the house is typically a gable or hip roof in the Victorian or Edwardian style. The ground floor is arranged as separate living and dining rooms towards the front yard, with the kitchen located toward the rear of the house. Upstairs there are typically three bedrooms and one bathroom. The basements of the Interwar Detached are likely to be too short for a legal basement suite, and require underpinning to increase the ceiling height.
This type was common before the prevalence of cars, and hence often does not have a side yard driveway or a garage - unless the property backs onto a laneway. Parking is typically accomodated in the front yard or on the street.

Real Estate Listings
Presented below are a few examples of the Interwar Detached type for your viewing and pricing reference.
Pricing as of June 2022
Neighbourhood Aerial
Aerial view of a sample neighbourhood with an Interwar Detached highlighted in orange.
Existing House Plans

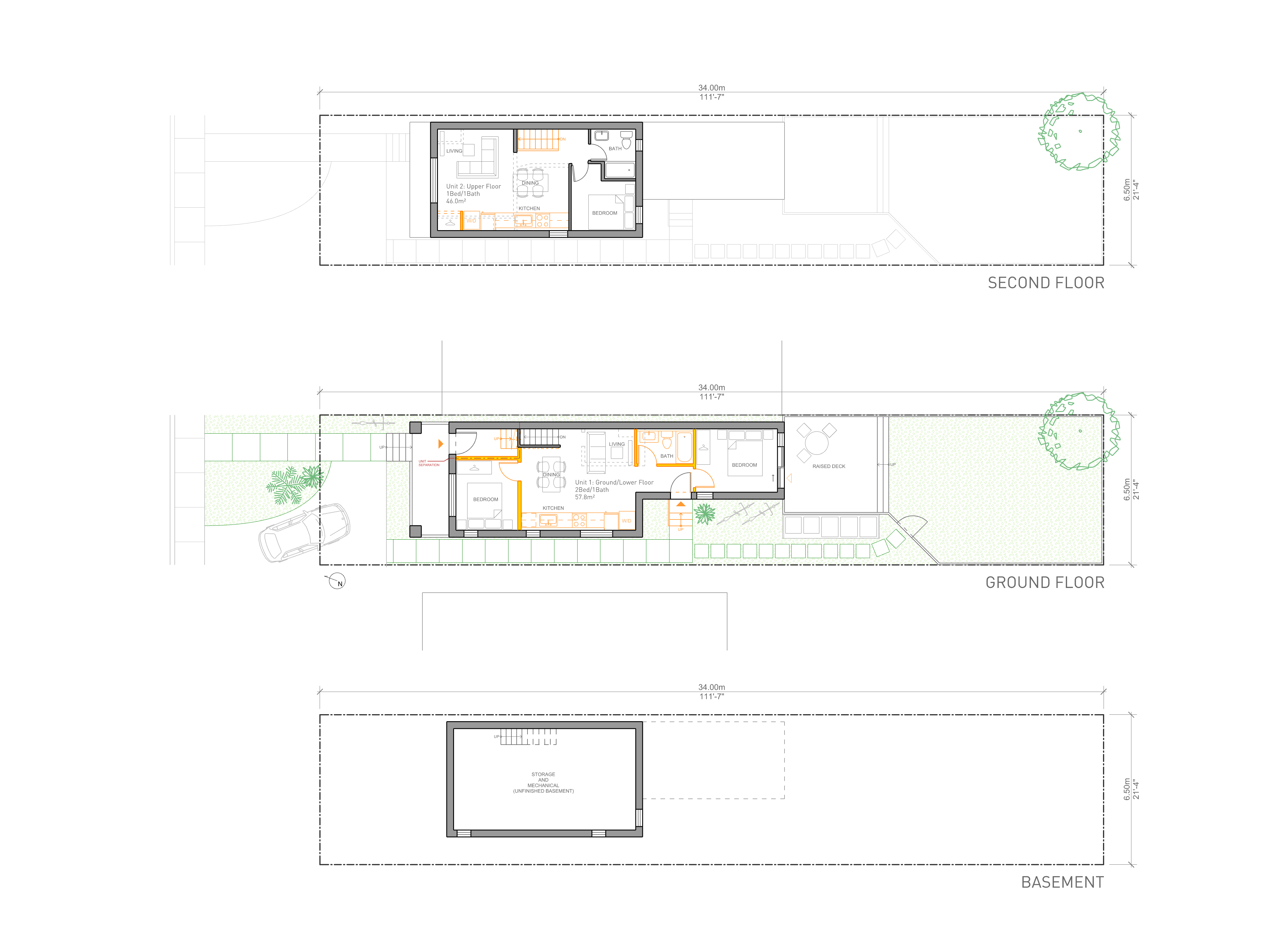
Housing Option: Low
This scheme is limited to interior renovations within the existing building footprint.
The building is divided into two units, with one unit on each floor. The interior stair is fire separated from each unit and provides a shared entrance foyer. The existing basement is maintained as a shared storage and mechanical space, as the ceiling height is not sufficient to accommodate a legal unit without underpinning the foundation.
Housing Stats:
Second Floor Area = 41.8m2
Ground Floor Area = 56.6m2
Basement Floor Area = 38.5m2 (excluded from FSI)
Total Floor Area = 136.9m2
The building is divided into two units, with one unit on each floor. The interior stair is fire separated from each unit and provides a shared entrance foyer. The existing basement is maintained as a shared storage and mechanical space, as the ceiling height is not sufficient to accommodate a legal unit without underpinning the foundation.
Occupancy and Density:
Total Unit Count = 2 Units
Total Occupancy = 3 Beds
Lot Area = 221.0m2
FSI = 0.45
Total Unit Count = 2 Units
Total Occupancy = 3 Beds
Lot Area = 221.0m2
FSI = 0.45
Housing Stats:
Second Floor Area = 41.8m2
Ground Floor Area = 56.6m2
Basement Floor Area = 38.5m2 (excluded from FSI)
Total Floor Area = 136.9m2


Housing Option: Medium
This scheme is limited to minor additions, accessory dwelling units (Garden Suite or Laneway Suite) and renovations within the existing building footprint, and may include the scope of work included in the ‘LOW’ option.
Whereas the ‘LOW’ option retains the existing staircase, this scheme upgrades the main staircase of the building to adhere to the 860mm minimum width required by the modern building code for a stair within a dwelling unit, and requires some minor reconfiguring of the units on each floor. The low-sloped roof over the rear of the ground storey is replaced with a private outdoor terrace for the upstairs unit. The basement is underpinned to increase the ceiling height and renovated as a large studio unit. The front yard is also partially excavated to provide a sunken patio and direct access to the basement unit.
Housing Stats:
Whereas the ‘LOW’ option retains the existing staircase, this scheme upgrades the main staircase of the building to adhere to the 860mm minimum width required by the modern building code for a stair within a dwelling unit, and requires some minor reconfiguring of the units on each floor. The low-sloped roof over the rear of the ground storey is replaced with a private outdoor terrace for the upstairs unit. The basement is underpinned to increase the ceiling height and renovated as a large studio unit. The front yard is also partially excavated to provide a sunken patio and direct access to the basement unit.
Occupancy and Density:
Total Unit Count = 3 Units
Total Occupancy = 4 Beds
Lot Area = 221.0m2
FSI = 0.45
Total Occupancy = 4 Beds
Lot Area = 221.0m2
FSI = 0.45
Housing Stats:
Second Floor Area = 41.8m2
Ground Floor Area = 56.6m2
Basement Floor Area = 38.5m2 (excluded from FSI)
Total Floor Area = 136.9m2
Ground Floor Area = 56.6m2
Basement Floor Area = 38.5m2 (excluded from FSI)
Total Floor Area = 136.9m2


Housing Option: High
This scheme is limited to major additions or a combination of minor additions, accessory dwelling units (Garden Suite or Laneway Suite) and renovations within the existing building footprint, and may include the scope of work included in the ‘LOW’ and ‘MEDIUM’ options.
On this property, a rear addition to the second floor provides enough additional floor area to convert the third-floor unit from a 1-bedroom to a 2-bedroom unit.
For properties backing onto a laneway, it may be feasible to add a laneway suite at the rear of the lot. Properties that are not located on laneways may not be able to provide adequate space for a garden suite due to the required side yard setbacks.
Housing Stats:
On this property, a rear addition to the second floor provides enough additional floor area to convert the third-floor unit from a 1-bedroom to a 2-bedroom unit.
For properties backing onto a laneway, it may be feasible to add a laneway suite at the rear of the lot. Properties that are not located on laneways may not be able to provide adequate space for a garden suite due to the required side yard setbacks.
Occupancy and Density:
Total Unit Count = 3 Units
Total Occupancy = 5 Beds
Lot Area = 221.0m2
FSI = 0.53
Total Unit Count = 3 Units
Total Occupancy = 5 Beds
Lot Area = 221.0m2
FSI = 0.53
Housing Stats:
Second Floor Area = 60.6m2
Ground Floor Area = 56.6m2
Basement Floor Area = 38.5m2 (excluded from FSI)
Total Floor Area = 155.7m2
Ground Floor Area = 56.6m2
Basement Floor Area = 38.5m2 (excluded from FSI)
Total Floor Area = 155.7m2


Housing Option: New
The “New” Options propose demolition of the existing house and the construction of a new multiplex within the zoning/built form permitted for single-detached houses.
This scheme proposes a triplex of “through” apartments with each apartment accessed from a shared interior stair and an exterior stair at the rear serving as a the second means of egress. A fourth unit is added in the basement with direct access from the street and to the backyard. The upper units share a small recessed entry porch, with only one of the entrance doors visible along the street elevation to address the concern of maintaining “neighbourhood character”.
This scheme proposes a triplex of “through” apartments with each apartment accessed from a shared interior stair and an exterior stair at the rear serving as a the second means of egress. A fourth unit is added in the basement with direct access from the street and to the backyard. The upper units share a small recessed entry porch, with only one of the entrance doors visible along the street elevation to address the concern of maintaining “neighbourhood character”.
Occupancy and Density:
Total Unit Count = 4 Units
Total Occupancy = 7 Beds
Lot Area = 221.0m2
FSI = 0.92
Total Unit Count = 4 Units
Total Occupancy = 7 Beds
Lot Area = 221.0m2
FSI = 0.92
Housing Stats:
Third Floor Area = 54.0m2
Second Floor Area = 80.0m2
Ground Floor Area = 69.7m2
Basement Floor Area = 68.4m2 (excluded from FSI)
Total Floor Area = 272.1m2
Third Floor Area = 54.0m2
Second Floor Area = 80.0m2
Ground Floor Area = 69.7m2
Basement Floor Area = 68.4m2 (excluded from FSI)
Total Floor Area = 272.1m2


Back to Matrix of Building Typologies
THIS WEBSITE, INCLUDING ALL DATA AND INFORMATION INCORPORATED HEREIN, IS BEING PROVIDED FOR INFORMATION PURPOSES ONLY AND IS NOT INTENDED FOR AND HAS NOT BEEN APPROVED FOR USE FOR CONSTRUCTION AT ANY LOCATION.
For certainty, ReHousing (Canada), The University of Toronto, John H. Daniels Faculty of Architecture Landscape and Design, and LGA Architectural Partners provides no representation or warranty regarding any use of or reliance upon this website, including any representation or warranty that this website complies with applicable laws (including any applicable zoning by-laws or building code requirements) and any representation or warranty that any cost estimates included in or based upon this website have been validated by the applicable market. Any use of or reliance upon this website by any person for any purpose shall be at such person’s sole risk and ReHousing (Canada), The University of Toronto, John H. Daniels Faculty of Architecture Landscape and Design, and LGA Architectural Partners shall have no liability or responsibility for any such use of or reliance upon this website by any person for any purpose. Prior to any use of or reliance upon this website by any person for any purpose, consultation with a professional architect duly licensed in the applicable jurisdiction is strongly recommended.
For certainty, ReHousing (Canada), The University of Toronto, John H. Daniels Faculty of Architecture Landscape and Design, and LGA Architectural Partners provides no representation or warranty regarding any use of or reliance upon this website, including any representation or warranty that this website complies with applicable laws (including any applicable zoning by-laws or building code requirements) and any representation or warranty that any cost estimates included in or based upon this website have been validated by the applicable market. Any use of or reliance upon this website by any person for any purpose shall be at such person’s sole risk and ReHousing (Canada), The University of Toronto, John H. Daniels Faculty of Architecture Landscape and Design, and LGA Architectural Partners shall have no liability or responsibility for any such use of or reliance upon this website by any person for any purpose. Prior to any use of or reliance upon this website by any person for any purpose, consultation with a professional architect duly licensed in the applicable jurisdiction is strongly recommended.














