This website is a guide and is not intended to replace professional advice. Please see our disclaimer for more information!
Design Catalogue
01 Prewar Rowhouse





Prewar Rowhouses were originally built in the late 19th century
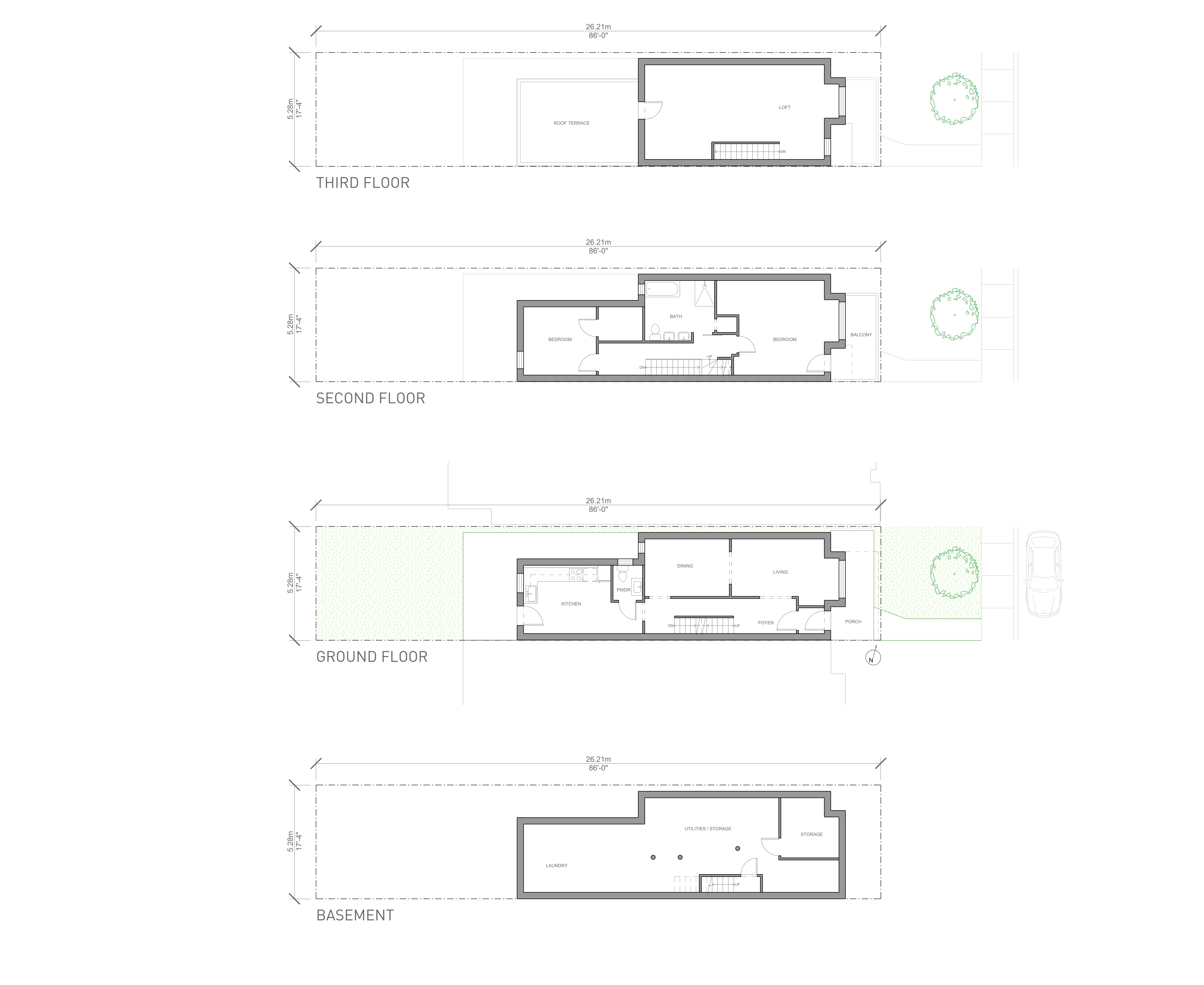
The Prewar Rowhouse can be found in many of the downtown neighbourhoods of Toronto. Its characteristic roof geometry is typically a gable roof with one or more dormers in the Victorian style. The interior layout is organized around a straight-run staircase aligned with the front entrance, with living areas on the ground floor and several bedrooms on the second floor. Some of the Prewar Rowhouses were also built with large attics as additional living space that have since been renovated to function as a full third floor. The basements of the Prewar Rowhouse are likely to be too short for a legal basement suite, and require underpinning to increase the ceiling height.
The high lot coverage and density (floor space index) of the existing house make it challenging to propose an addition or extension. The age of these buildings also makes it challenging to retrofit and upgrade them to adhere with modern standards and building code.
This type was common before the prevalence of the car, and hence does not typically have parking or a garage unless the property backs onto a laneway.




Real Estate Listings
Presented below are a few examples of the Prewar Rowhouse type for your viewing and pricing reference.
Pricing as of June 2022
Neighbourhood Aerial
Aerial view of a sample neighbourhood with a Prewar Rowhouse highlighted in orange.

Existing House Plans

Housing Option: Low
This scheme is limited to interior renovations within the existing building footprint.
The building is divided into three units, with one unit on each floor. The interior stair is fire separated and provides a shared entrance foyer. The existing basement is rearranged with a shared laundry room, a mechanical room for the whole building and individual storage rooms for each unit. The ground floor unit retains the existing kitchen, and the second floor unit is designed to require minimal changes to existing structural walls and plumbing locations. A bathroom and small kitchen is added to the third floor loft to make this a studio unit with a large terrace. Adding a separate unit on the third floor requires providing a second exit stair to the building, and could be designed as spiral stair.
Housing Stats:
Third Floor Area = 42.0m2
Second Floor Area = 61.6m2
Ground Floor Area = 61.6m2
Basement Floor Area = 63.4m2 (excluded from FSI)
The building is divided into three units, with one unit on each floor. The interior stair is fire separated and provides a shared entrance foyer. The existing basement is rearranged with a shared laundry room, a mechanical room for the whole building and individual storage rooms for each unit. The ground floor unit retains the existing kitchen, and the second floor unit is designed to require minimal changes to existing structural walls and plumbing locations. A bathroom and small kitchen is added to the third floor loft to make this a studio unit with a large terrace. Adding a separate unit on the third floor requires providing a second exit stair to the building, and could be designed as spiral stair.
Occupancy and Density:
Total Unit Count = 3 Units
Total Occupancy = 3 Beds
Lot Area = 138.4m2
FSI = 1.19
Total Unit Count = 3 Units
Total Occupancy = 3 Beds
Lot Area = 138.4m2
FSI = 1.19
Housing Stats:
Third Floor Area = 42.0m2
Second Floor Area = 61.6m2
Ground Floor Area = 61.6m2
Basement Floor Area = 63.4m2 (excluded from FSI)
Total Floor Area = 228.6m2


Housing Option: Medium
This scheme is limited to minor additions, accessory dwelling units (Garden Suite or Laneway Suite) and renovations within the existing building footprint, and may include the scope of work included in the ‘LOW’ option.
The existing house already occupies much of the lot, making it challenging to propose any addition or extension. Unless the rear yard backs onto a laneway and meets the firefighter access requirements for a laneway suite, it is not possible to provide an accessory dwelling unit in the rear yard. While this version is shown without a laneway suite, some properties may be able to accommodate one.
Whereas the low option retains the existing narrow staircase, the medium scheme proposes replacement of the main interior stair and a second exit stair off the rear of the building. The floor plan of each unit is reconfigured to accomodate a wider interior stair that adheres to the minimum 900mm stair width required by the modern building code for a stair serving more than one unit (OBC 9.8.2.1). The basement is underpinned to increase the ceiling height and is converted to a studio unit accessed from the main stair. An exterior stair to the rear yard is also excavated to provide daylight and a second means of egress for the basement unit.
The existing house already occupies much of the lot, making it challenging to propose any addition or extension. Unless the rear yard backs onto a laneway and meets the firefighter access requirements for a laneway suite, it is not possible to provide an accessory dwelling unit in the rear yard. While this version is shown without a laneway suite, some properties may be able to accommodate one.
Whereas the low option retains the existing narrow staircase, the medium scheme proposes replacement of the main interior stair and a second exit stair off the rear of the building. The floor plan of each unit is reconfigured to accomodate a wider interior stair that adheres to the minimum 900mm stair width required by the modern building code for a stair serving more than one unit (OBC 9.8.2.1). The basement is underpinned to increase the ceiling height and is converted to a studio unit accessed from the main stair. An exterior stair to the rear yard is also excavated to provide daylight and a second means of egress for the basement unit.
Occupancy and Density:
Total Unit Count = 4 Units
Total Occupancy = 4 Beds
Lot Area = 138.4m2
FSI = 1.19
Total Unit Count = 4 Units
Total Occupancy = 4 Beds
Lot Area = 138.4m2
FSI = 1.19
Housing Stats:
Third Floor Area = 42.0m2
Second Floor Area = 61.6m2
Ground Floor Area = 61.6m2
Basement Floor Area = 63.4m2 (excluded from FSI)
Total Floor Area = 228.6m2
Third Floor Area = 42.0m2
Second Floor Area = 61.6m2
Ground Floor Area = 61.6m2
Basement Floor Area = 63.4m2 (excluded from FSI)
Total Floor Area = 228.6m2


Housing Option: High
This scheme is limited to major additions or a combination of minor additions, accessory dwelling units (Garden Suite or Laneway Suite) and renovations within the existing building footprint, and may include the scope of work included in the ‘LOW’ and ‘MEDIUM’ option.
In addition to the work included in the ‘MEDIUM’ scheme, a rear addition to the third floor provides enough additional floor area to convert the third-floor unit from a studio to a small 2-bedroom apartment.
In addition to the work included in the ‘MEDIUM’ scheme, a rear addition to the third floor provides enough additional floor area to convert the third-floor unit from a studio to a small 2-bedroom apartment.
Occupancy and Density:
Total Unit Count = 5 Units
Total Occupancy = 5 Beds
Lot Area = 138.4m2
FSI = 1.35
Total Unit Count = 5 Units
Total Occupancy = 5 Beds
Lot Area = 138.4m2
FSI = 1.35
Housing Stats:
Third Floor Area = 63.2m2
Second Floor Area = 61.6m2
Ground Floor Area = 61.6m2
Basement Floor Area = 63.4m2 (excluded from FSI)
Third Floor Area = 63.2m2
Second Floor Area = 61.6m2
Ground Floor Area = 61.6m2
Basement Floor Area = 63.4m2 (excluded from FSI)
Total Floor Area = 249.8m2


Housing Option: New
The “New” Options propose demolition of the existing house and the construction of a new multiplex within the zoning/built form permitted for single-detached houses.
This scheme proposes a multiplex of four “through” apartments with each apartment extending the full depth of the floor plan. Each unit is accessed from a single shared interior stair.
This design does not comply with the Ontario Building Code, which requires a second exit stair for the upper units because they do not each have an independent, internalized exit stair. It may be possible to apply for alternative solutions building code compliance by working with an architect and code consultant to propose additional fire safety measures (like an automatic sprinkler system) instead of providing two stairs.
This scheme proposes a multiplex of four “through” apartments with each apartment extending the full depth of the floor plan. Each unit is accessed from a single shared interior stair.
This design does not comply with the Ontario Building Code, which requires a second exit stair for the upper units because they do not each have an independent, internalized exit stair. It may be possible to apply for alternative solutions building code compliance by working with an architect and code consultant to propose additional fire safety measures (like an automatic sprinkler system) instead of providing two stairs.
Occupancy and Density:
Total Unit Count = 4 Units
Total Occupancy = 8 Beds
Lot Area = 138.4m2
FSI = 1.56
Total Unit Count = 4 Units
Total Occupancy = 8 Beds
Lot Area = 138.4m2
FSI = 1.56
Housing Stats:
Third Floor Area = 68.4m2
Second Floor Area = 73.5m2
Ground Floor Area = 73.5m2
Basement Floor Area = 72.9m2 (excluded from FSI)
Third Floor Area = 68.4m2
Second Floor Area = 73.5m2
Ground Floor Area = 73.5m2
Basement Floor Area = 72.9m2 (excluded from FSI)
Total Floor Area = 288.3m2


THIS WEBSITE, INCLUDING ALL DATA AND INFORMATION INCORPORATED HEREIN, IS BEING PROVIDED FOR INFORMATION PURPOSES ONLY AND IS NOT INTENDED FOR AND HAS NOT BEEN APPROVED FOR USE FOR CONSTRUCTION AT ANY LOCATION.
For certainty, ReHousing (Canada), The University of Toronto, John H. Daniels Faculty of Architecture Landscape and Design, and LGA Architectural Partners provides no representation or warranty regarding any use of or reliance upon this website, including any representation or warranty that this website complies with applicable laws (including any applicable zoning by-laws or building code requirements) and any representation or warranty that any cost estimates included in or based upon this website have been validated by the applicable market. Any use of or reliance upon this website by any person for any purpose shall be at such person’s sole risk and ReHousing (Canada), The University of Toronto, John H. Daniels Faculty of Architecture Landscape and Design, and LGA Architectural Partners shall have no liability or responsibility for any such use of or reliance upon this website by any person for any purpose. Prior to any use of or reliance upon this website by any person for any purpose, consultation with a professional architect duly licensed in the applicable jurisdiction is strongly recommended.
For certainty, ReHousing (Canada), The University of Toronto, John H. Daniels Faculty of Architecture Landscape and Design, and LGA Architectural Partners provides no representation or warranty regarding any use of or reliance upon this website, including any representation or warranty that this website complies with applicable laws (including any applicable zoning by-laws or building code requirements) and any representation or warranty that any cost estimates included in or based upon this website have been validated by the applicable market. Any use of or reliance upon this website by any person for any purpose shall be at such person’s sole risk and ReHousing (Canada), The University of Toronto, John H. Daniels Faculty of Architecture Landscape and Design, and LGA Architectural Partners shall have no liability or responsibility for any such use of or reliance upon this website by any person for any purpose. Prior to any use of or reliance upon this website by any person for any purpose, consultation with a professional architect duly licensed in the applicable jurisdiction is strongly recommended.